衣帽间!巧用玄关,引入西厨岛台,打造LDK式客餐厨的日式氛围家( 二 )
文章插图
回头看玄关处,白色柜体中的圆弧形原木色洞洞板,与空间氛围呼应为这个家增添仪式感的同时,也注入了家的温度。

文章插图
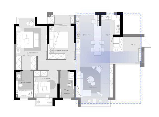
小调整,大改观。本案在户型上最大的改造就是将内玄关墙体打通,厨房做成开放式,减少遮挡,从而形成视觉感官上会大于实际空间的效果。保留南北双向阳台,采光非常好,视觉通透。

文章插图
开放式LDK客餐厅一体化的设计,动线非常流畅,提高公共空间的互动性,丰富生活场景。餐厨区

文章插图

文章插图

文章插图
复古编织藤椅,总是有种让时光慢下来的感觉......

文章插图
餐边柜除了赋予收纳功能同时也丰富了餐厅的体验,柴米油盐也能将爱好在同一空间交织、融合。

文章插图
餐桌与岛台连接在一起,让原本局促的空间更为宽敞,不设防的开放式空间,丰富了空间动线,为屋主提供了更多灵活的生活方式,也许幸福就在互动的每个瞬间。
【 衣帽间!巧用玄关,引入西厨岛台,打造LDK式客餐厨的日式氛围家】

文章插图
这扇窗是家里的主光源,为了保留享受阳光的纯粹性,将原本狭长的生活阳台一分为二,保留公共空间的美观整体性。原木置物架,温润、简单、大气,呼应玄关的东方意境,家中也有诗和远方。

文章插图
安然舒适,享受生活从指缝中缓缓流逝的状态,品味生活之本。

文章插图
提前根据洗碗机尺寸预留空间,将洗碗机嵌入岛台下方,整洁实用。左边柜体选用的隐形拉手,极简又实用,而且这种拉手比按压式的会更耐用。

文章插图
厨房选用的集成灶,墙面贴的复古小白砖,干净清爽。

文章插图
生活美学无不讲究品味,我们发现品“味”都是在讲味觉、所以“吃”真的是人类认识美的一个最重要的开始。也许这也可以解释为什么随着生活品质的提升,现代人越来越注重餐厨的体验。

文章插图
温暖不仅治愈胃,也治愈心灵,好好生活,认真对待生活中的每一件小事,就是当下生活最美的艺术呈现!客 厅

- 留白|巧用留白!提升版式设计艺术感!
- 翡翠|两块三彩翡翠片料,没想玉雕师巧用西游记题材,成品让人想不到!
- |下属偷懒耍滑,三招技巧用起来,再懒都会积极配合
- 心术&贾母的心术有多强悍?鸳鸯当众告状,贾母巧用王夫人来当替罪羔羊
- 宝玉@秦可卿为何巧用计谋,安排贾宝玉去自己房间午睡?她到底有何目的
- 禅房#明代奇案:寺庙传妖怪害人,知县巧用计,揪出8起违背伦常的凶案
- 玲珑骰子安红豆!温庭筠很著名的一首诗,巧用双关、脑洞别致,其中14字成为经典
- 物象!绘画技法杨保亚巧用矾水墨色 绘画冰雪天地
- 妖怪!明代奇案寺庙传妖怪害人,知县巧用计,揪出8起违背伦常的凶案
- 秦钟@秦可卿为何巧用计谋,安排贾宝玉去自己房间午睡?她到底有何意图
